![]() |
|
![]() |
|
||||||||||
![]() |
|||||||||||||
|
|
|
|
| |||||||||
|
|||||||||||||
| Wohnen Öffentliche Bauten Stadtmuseum Kassel Kita Stadtpark Berlin North Foreningshus DK Museum St.Gallen Berlin-Ostbahnhof Bhf Frankfurt-Oder Rathaus Ijsselstein Städtebau Konversionsprojekte Publikation |
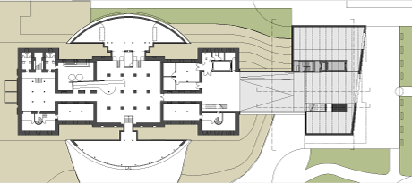
Projektwettbewerb Kunstmuseum St. Gallen
Der Gebäudeentwurf arbeitet mit den abstrakten räumlichen Ordnungen des Stadtraums und entwickelt sich darüber zum eigenständigen Objekt. Das städtebauliche Prinzip zueinander versetzter Achsen, die jeweils ein Gegenüber von Raum und Objekt bilden, wird an der offenen Verbindung zwischen Quartier und Park aufgelöst. Im Inneren wird die durchlaufende Längsachse aus dem UG des Altbaus in das EG des Neubaus verlängert und auf das Niveau des Parks geführt. Das Piano Nobile wird im 1.OG des Entwurfes neu interpretiert. Ein umlaufendes Fries aus gefalteten Aluminium-Elementen überformt hier die sonst so ruhige Materialität und eröffnet Blicke zur Stadt. HAHOH Haas Heckmann Architekten |
||||||||||||
![]() |
|||||||||||||
|
![]() |
||||||||||||
![]() |
|||||||||||||
|
![]() |
||||||||||||